50
$685,000 Sale
Listed 10 hours ago
50 Fawsons Cove Road
· 2+1
· 2.5
· 0
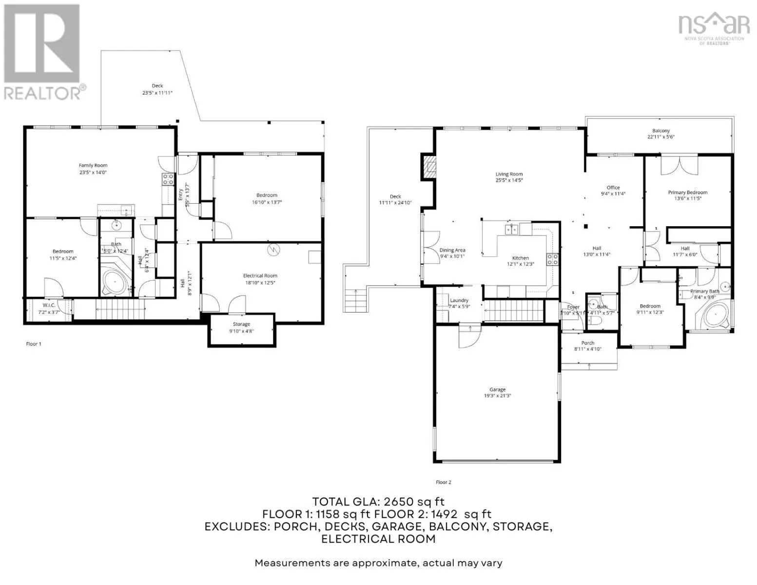
· 2650
Key Facts
Key facts for 50 Fawsons Cove Road
Property Type
House, House
Parking
Garage: Yes, 0 parking
MLS #
202525799
Size
2650 sqft
Basement
-
Listed on
-
Lot size
-
Tax
-
Days on Market
-
Year Built
1989
Maintenance Fee
-
Description
Welcome to 50 Fawsons Cove Road, where panoramic ocean views meet true Nova Scotia charm. This beautifully maintained 3+den bedroom, 2.5-bath home offers flexibility, comfort, and breathtaking coastal scenery from nearly every window. Whether youre searching for an income property, a space for ext...ended family, or your own peaceful retreat, this home delivers it all. The main level features a bright and inviting layout with a freshly painted interior, updated bathrooms including a brand-new shower, and the convenience of both the primary bedroom and laundry on the main floor. The spacious kitchen and living areas open to multiple decks where you can soak in the stunning ocean backdrop; the perfect for morning coffees or sunset dinners. Downstairs, youll find a full secondary suite with its own private entrance, ideal for in-laws, guests, or potential rental income. The property also includes an attached garage, whimsical landscaping, and thoughtful updates like a 2019 roof. Just minutes from Crystal Crescent Beach, Mishoos Take-Out & NSLC, Bayside Camp, and Duncans Cove Trail, youre perfectly positioned to enjoy both outdoor adventure and daily conveniences. Plus, youre only 35 minutes from downtown Halifax and moments from where the new multi-million-dollar community centre has recently been approved to be built. Experience coastal living at its finest with comfort, community, and views that will take your breath away. (id:10452)
Similar Properties (No results)
Room Types
Bath (# pieces 1-6)
-
Dimensions 12.4. x 5.0..
0 sqft
Bath (# pieces 1-6)
-
Dimensions 5.7. x 4.11..
0 sqft
Bedroom
-
Dimensions 12.4. x 11.5.
0 sqft
Listing courtesy of: RE/MAX Nova (Halifax)
This REALTOR.ca listing content is owned and licensed by REALTOR® members of The Canadian Real Estate Association.