40
$549,900 Sale
Listed 3 hours ago
4 Thomas Creek Lane
· 3
· 1.5
· 0
· 1719
Key Facts
Key facts for 4 Thomas Creek Lane
Property Type
House, House
Parking
Garage: No, 0 parking
MLS #
NB128834
Size
1719 sqft
Basement
-
Listed on
-
Lot size
-
Tax
-
Days on Market
-
Year Built
2025
Maintenance Fee
-
Description
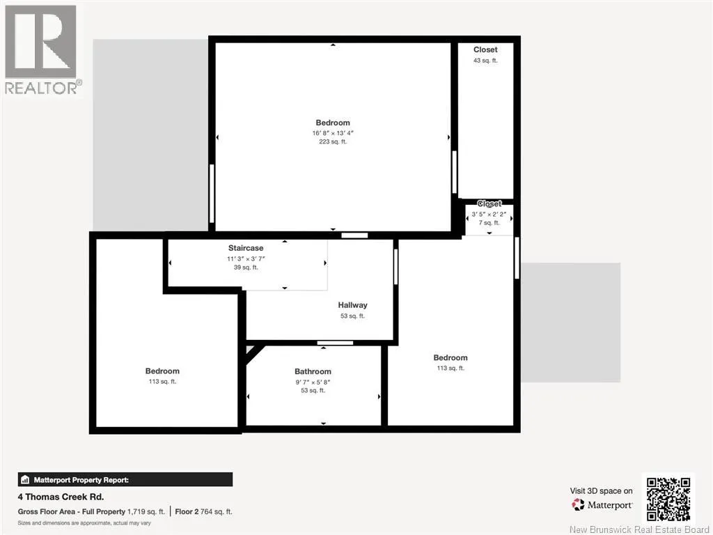
Welcome to 4 Thomas Creek Lane, a stunning new build in a peaceful country subdivision, offering the perfect blend of modern design and everyday comfort. This 3-bedroom, 1.5-bath home features a sleek dark exterior that makes a bold first impression and complements its natural surroundings. The main... floor offers a bright, open-concept kitchen and living area ideal for entertaining, a convenient mudroom, main floor laundry, and a powder room for guests. The energy-efficient heat pump ensures comfort throughout the seasons. Upstairs, youll find three spacious bedrooms and a stylish full bathroom with a stand-up shower and relaxing soaker tub. Both the primary and second bedrooms have private access to an upper balcony - the perfect spot for your morning coffee or to enjoy the fresh country air. Step outside to a sunny back deck, ideal for BBQs, gatherings, or simply relaxing. Thoughtfully designed and beautifully finished, this new build offers the opportunity to personalize your final touches and make it truly your own. (id:10452)
Similar Properties (No results)
Room Types
2pc Bathroom
-
Dimensions 6'7'' x 4'9''
31.27 sqft
Bath (# pieces 1-6)
-
Dimensions 5'6'' x 9'7''
52.71 sqft
Bedroom
-
Dimensions 13'0'' x 10'0''
130 sqft
Listing courtesy of: eXp Realty
This REALTOR.ca listing content is owned and licensed by REALTOR® members of The Canadian Real Estate Association.