30
$549,900 Sale
Listed 1 day
200 SIXTH STREET
· 3+2
· 2.0
· 2
· 700 - 1100
Key Facts
Key facts for 200 SIXTH STREET
Property Type
House, House
Parking
Garage: No, 2 parking
MLS #
S12468277
Size
700 - 1100 sqft
Basement
Finished, Full (Finished)
Listed on
-
Lot size
-
Tax
-
Days on Market
-
Year Built
-
Maintenance Fee
-
Description
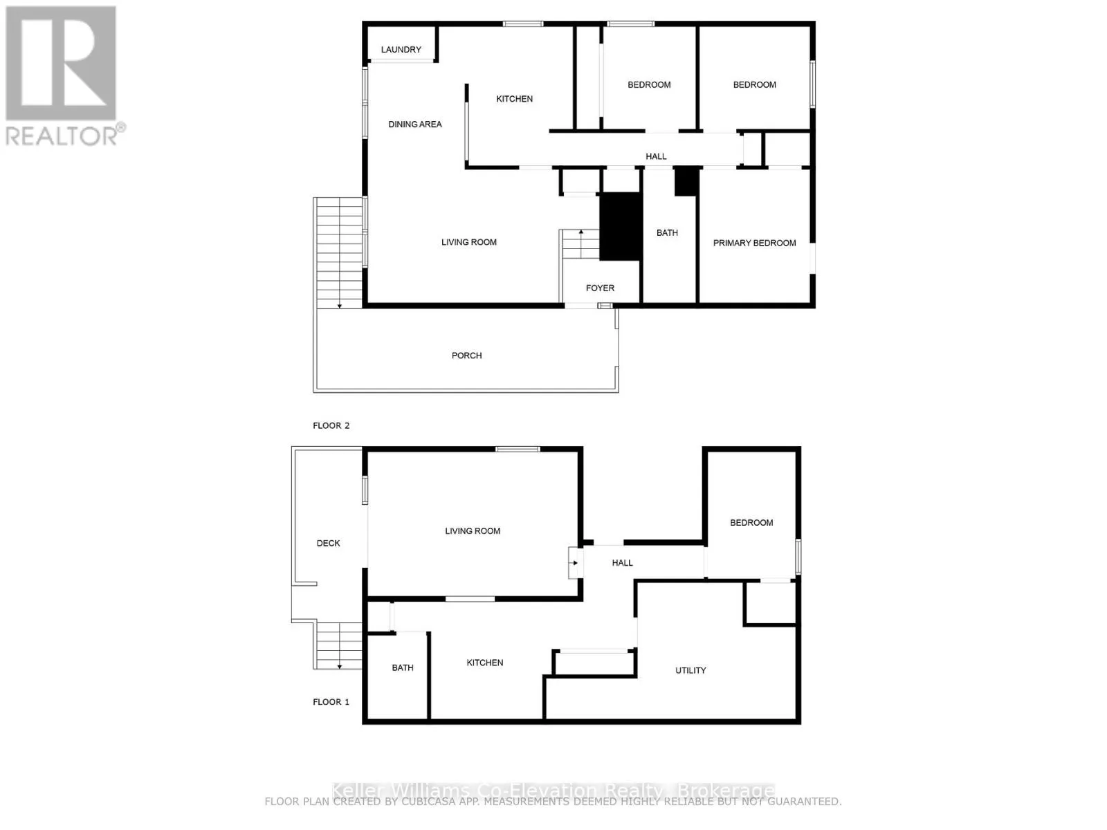
Welcome home to one of the most versatile properties in Midland, perfect for multi-generational families or first-time buyers looking for flexibility and comfort. The upper level offers amazing views over Midland Harbour, a bright open layout, and a primary bedroom with walkout to a private hot tub ...area, the perfect place to relax and unwind after a long day. The lower level features a separate suite that's ideal for extended family or as an income helper to make monthly expenses more manageable and keep more money in your pocket for enjoying all the amazing things this area has to offer. Outside, you'll love the fully fenced backyard, a private retreat with space to entertain, play, or simply enjoy the outdoors. Recent updates include a new furnace (2022) with updated AC, a full upper-level renovation (2021) featuring granite counters and engineered acacia flooring, new soffits, fascia, and eavestroughs (2021), a new back door (2024), and a new hot tub cover and pump (2025). Previous updates (2017) include separate 100 AMP hydro panels for each unit, new windows and doors, and a paved driveway. Conveniently located near the hospital, schools, Victoria Park, and the waterfront trail, this home combines comfort, lifestyle, and smart living all in one. (id:10452)
Similar Properties (No results)
Room Types
Bedroom
-
Dimensions 3.54 m x 2.45 m
93.36 sqft
Bedroom 2
-
Dimensions 2.86 m x 3.08 m
94.82 sqft
Bedroom 3
-
Dimensions 2.86 m x 2.58 m
79.42 sqft
Listing courtesy of: Keller Williams Co-Elevation Realty, Brokerage
This REALTOR.ca listing content is owned and licensed by REALTOR® members of The Canadian Real Estate Association.